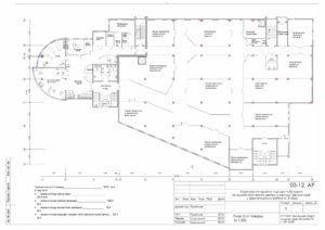
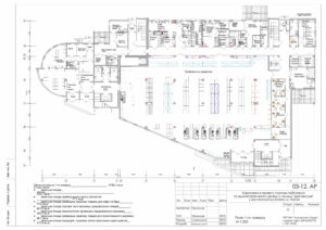
Торгово-побутовий та адміністративний центр
В складі торгового центру наступні підприємства громадського обслуговування:
- Магазин продовольчих товарів (супермаркет);
- Магазин непродовольчих товарів «Все для дому»;
- Аптечний кіоск;
- Пункт приймання хімчистки одягу;
- Відділення банку;
- Фітнес-центр;
- Салон краси і перукарня;
- Кафе з більярдним залом;
- Офісна частина.

