Реконструкція будівлі (Дітсадок)
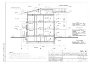
Об’єкт проектування – існуючий дитячий садок, побудований орієнтовно в 70-х роках минулого століття за типовим проектом 212-2-41/75. Будівля 2 –поверхова, з підвалом. Коснтруктивна система – будинок каркасно-панельний, з шатровим дахом.
Надбудова 3 поверху і фронтальне розширення в центральних осях будинку спричинена необхідністю збільшення місткості дитячого садка до 150-160 місць з урахуванням нових норматвиних документів та інклюзивного виховання дітей.
Дитячий садок розміщено в Шевченківському адміністративному районі м. Києва, за адресою вул. Богдана Гаврилишина,11,А на ділянці території площею 0,515 га, в кварталі, обмеженому вул. Віктора Ярмоли, Богдана Гаврилишина і огорожею між житловою забудовою і Зоопарком.
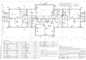
Архітектурно-планувальні рішення:
На 1-му поверсі розміщено:
– вхідні приміщення до групових та адміністративних приміщень дитячого садка, з широкими ганками, хол з вантажо-пасажирським ліфтом ( в т.ч. для МГН), всі комунікаційні приміщення на 1-3 поверхах пов’язані відкритими парадними сходами типу С2;
– окрім відкритих сходів в ветибюль, з двох протилежних в плані боків розміщено дві ізольовані стінами сходових клітки типу СК1(евакуаційні);
– ліворуч і праворуч від центральної на першому поверсі розміщено групові приміщення для ясельних груп з окремими ізольованими входами;
– крім того на 1 поверсі розміщено харчоблок їдальні, медпункт, побутові приміщення персоналу;
– біля кожної з кутових сходових клітин розміщено блоки санвузлів для учнів, в тому числі і для МНГ.
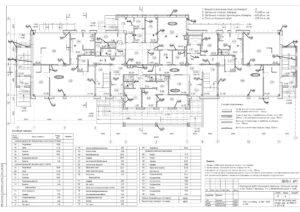
На 2 поверсі розміщено відповідно:
– дошкільні групові, в т.ч. одна інклюзивна група з додатковими приміщеннями, з ліфтом та сходами;
– зал для музичних занять, інтерактивна кімната(LEGO і т.п. ігри), кабінет псіхологічного розвантаження;
– адміністративні приміщення дитячого садка – кабінет завідуючого.
На 3 поверсі розміщено:
– три дошкільні групові, в т.ч. одна інклюзивна група з додатковими приміщеннями, з ліфтом та сходами;
– зал для занять фізкультурою, кімната ручної праці та методичний кабінет для вихователів.

