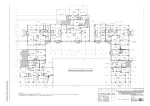
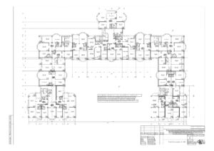
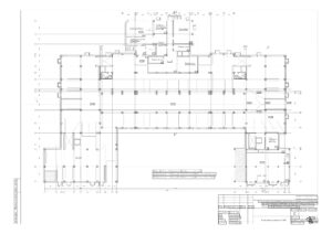
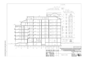
В умовах історичного середовища сформовано сучасний житловий комплекс підвищеного рівня комфортності з офісними приміщеннями на 1 поверсі та підземним паркінгом. Комплекс займає частину кварталу, обмеженому вул.. Волоською, Щекавицькою, Введенською на Подолі.