Бізнес-центр по вул. Почайнинській
2006 ескіз, 2018 р.- Містобудівний розрахунок.
Історико-містобудівне обгрунтування. Погодження.
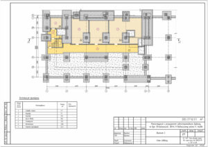
Об’єкт проектування – розміщений на вулиці Почайнинська, 38/44 в Подільському районі м. Києва, а саме на розі вулиць Почайнинська та Ярославська.
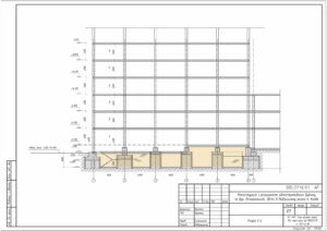
Проектом реконструкції адміністративного будинку по вул. Почайнинській 38/44 в Подільському районі м. Києва передбачається влаштування підвалу під будівлею та надбудову трьох поверхів. Також збільшення площі першого поверху шляхом приєднання до будівлі простору так званої “підрізки” відступу фасаду першого поверху на глубину 3м з двох сторін.
Функціональне призначення будівлі залишається без змін – офісні приміщення.
На першому поверсі запроектовано вхідну групу з місцем розміщення охорони, та санвузлом в тому числі для маломобільних груп населення.
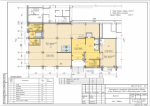
Також на першому поверсі розміщено два офісні приміщення, які забезпечені входами як з вестибюлю будівлі так і безпосередньо з вулиці.
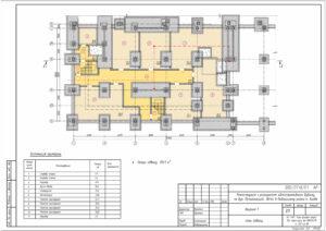
Кожний поверх з 2-го по 10-ий забезпечений двома сходовими клітками та 3-ма ліфтами (2 вантажо-пасажирські та 1 для транспортування пожежних підрозділів, який також може використовуватись як вантажний ліфт).
Техніко-економічні показники
“Реконструкція з розширенням та надбудовою мансардного та аттікового поверхів над адміністративним будинком за адресою: м. Київ, Подільський район, вул. Почайнинській, 38/44”
|
№ |
Назва показника |
Од. виміру |
По існуючому будинку |
Після перепланування |
|
1 |
Площа ділянки |
га |
||
|
2 |
Площа забудови |
м2 |
600,0 |
|
|
3 |
Поверховість |
пов. |
7 |
10 |
|
4 |
Загальний будівельний об’єм будинку |
м3 |
12651,2 |
16122,2 |
|
5 |
Загальна площа в т.ч.: |
м2 |
3800,4 |
5691,6 |
|
6 |
Корисна площа реконструйованих поверхів: |
м2 |
– |
|
|
7 |
А. Офісних частини |
м2 |
– |
1046,5 |
|
8 |
Б. Вбудованих приміщень громадського призначення |
м2 |
– |
348,9 |
|
9 |
Площа експлуатованої покрівлі |
м2 |
– |
178,15 |
|
10 |
Площа літніх приміщень |
м2 |
232,9 |
|

