Житловий комплекс на розі вул. Павленка, Уборевича.
Житловий комплекс
на розі вул. Павленка, Уборевича.
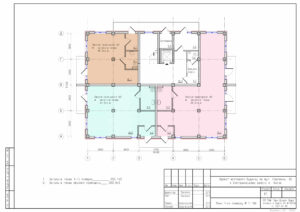
На 1-му поверсі запроектовано 2 офісні приміщення, а також 2-однокімнатні квартири (для потреб інвалідів). Житло займає 1-15 поверхи. Згідно проекту кілкість квартир – 92 шт