Гоголів спортзал школи
“Будівництво спортивної зали ЗОШ І-ІІІ ст. в с. Гоголів Броварського району Київської області”.
2017 р., Стадія – Робочий проект. В очікуванні реалізації.
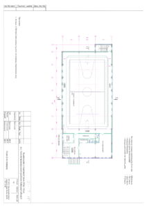
Об’єкт проектування — спортивна ігрова зала, який находиться на території загальноосвітньої школи І-ІІІ ст., що знаходиться в с. Гоголів, Броварського району Київської області, по вул. Київській, 167.
Загальні габаритні розміри в плані спортивної зали 45х20 м.
З західної сторони спортивна зала буде межувати з відкритими спортивними майданчиками. Головний вхід в спортзал розміщений з Півдня (зі сторони школи).
Будівля спортивної зали складається:
- Одноповерхової «двосвітньої» спортивної ігрової зали 31,000х20,000х9,200 м(висота, до низу виступаючих конструкцій) з балконом по периметру зали на висоті 3,600 м, шириною 1,500 м;
- Двоповерхова група допоміжних та технічний приміщень в складі:
- На 1 поверсі – вхідна група з вестибюлем і роздягальними, душовими і санвузлами для учнів;
- Електрощитова, комора спортивного інвентаря;
- На 2 поверсі – зал хореографії з роздягальнею, душовою та санвузлами;
оглядовий балкон по периметру ігрової зали.

